

ORALIA
P
R
E
C
E
D
A
N
T

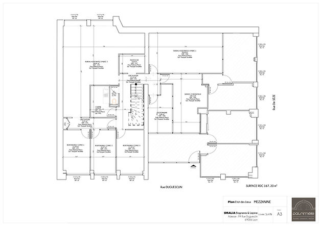
PLAN ETAT DES LIEUX
Aperçu du plan à l'échelle 1/75.
_ FB ARCHITECTURE &
l'agence PATRIMELLE . 2017 /
Agencement, décoration
de l’agence immobilière
S
U
I
V
A
N
T
" Minimal design,
Maximum impact "

PLAN ETAT DES LIEUX
Aperçu du plan à l'échelle 1/75.

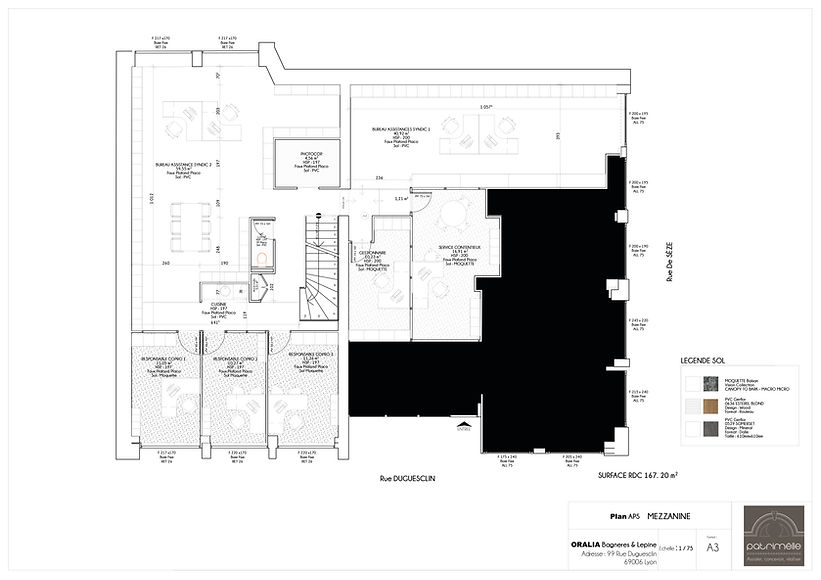
PLAN AMENAGEMENT
Aperçu du plan à l'échelle 1/75.
CONCEPT
En partenariat avec l’agence Patrimelle - Maître d’oeuvre,
Agencement et décoration des locaux de l’agence immobilière Oralia.
Séparer les différents espaces au sein de l’agence, création de contrastes couleurs : jeux de lumières et d’ombres.
Recréer les espaces nécessaires, repenser l’agencement de façon pratique et esthétique. Cadre chic et contemporain, convivial et confortable.

PLAN AMENAGEMENT
Aperçu du plan à l'échelle 1/75.
" Minimal design,
Maximum impact "

PAGE D’AMBIANCE
Proposition d'ambiance ,
gamme de couleurs, matériaux, mobilier
et mise en situation en 3D.
PAGE D’AMBIANCE
Proposition d'ambiance ,
gamme de couleurs, matériaux, mobilier
et mise en situation en 3D.


PAGE D’AMBIANCE
Proposition d'ambiance ,
gamme de couleurs, matériaux, mobilier
et mise en situation en 3D.
PAGE D’AMBIANCE
Proposition d'ambiance ,
gamme de couleurs, matériaux, mobilier
et mise en situation en 3D.


PAGE D’AMBIANCE
Proposition d'ambiance ,
gamme de couleurs, matériaux, mobilier
et mise en situation en 3D.
" Minimal design,
Maximum impact "
PAGE D’AMBIANCE
Proposition d'ambiance ,
gamme de couleurs, matériaux, mobilier
et mise en situation en 3D.


HALL D'ENTREE
Aperçu, mise en situation et coupes en 3D du hall d'entrée.
HALL D'ENTREE
Aperçu, mise en situation et
coupes en 3D du hall d'entrée.


BUREAUX
Aperçu, mise en situation et coupes en 3D du RDC.
" Minimal design,
Maximum impact "
ESPACE DETENTE
Aperçu, mise en situation et coupes en 3D du RDC.


ESPACE DETENTE
Aperçu, mise en situation et coupes en 3D du RDC.
ESPACE DETENTE
Aperçu, mise en situation et
coupes en 3D de la mezzanine.


SALLE DE REUNION
Aperçu, mise en situation et
coupes en 3D de la mezzanine.
SALLE DE REUNION
Aperçu, mise en situation et
coupes en 3D de la mezzanine.


SALLE DE REUNION
Aperçu, mise en situation et
coupes en 3D de la mezzanine.
" Minimal design,
Maximum impact "
SALLE DE REUNION
Aperçu, mise en situation et
coupes en 3D de la mezzanine.


ESPACE BUREAUX
Aperçu, mise en situation et
coupes en 3D du RDC.
ESPACE BUREAUX
Aperçu, mise en situation et
coupes en 3D du RDC.

FANNY BOIVIN
ARCHITECTE D'INTERIEUR
7 rue Paul Verlaine
69100 Villeurbanne
06.34.43.15.08