

CLIENT PARTICULIER
P
R
E
C
E
D
A
N
T

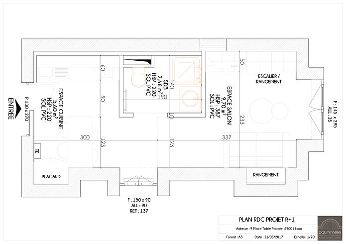
PLAN ETAT DES LIEUX
S
U
I
V
A
N
T
_ FB ARCHITECTURE &
l'agence PATRIMELLE. 2017 /
Réhabilitation studio
et décoration
Aperçu du plan à l'échelle 1/20.
" Minimal design,
Maximum impact "

PLAN ETAT DES LIEUX
Aperçu du plan à l'échelle 1/20.

SALON
Aperçu, mise en situation en 3D du salon.
CONCEPT
En partenariat avec l’agence Patrimelle - Maître d’oeuvre,
repenser, aménager et décorer un studio étudiant composé d’un RDC et d’une mezzanine.
Dans un esprit dynamique, rendre ses espaces exiguent plus ergonomiques, agréables à vivre
et fonctionnels.
On cherche à garder un maximum de place à vivre et à optimiser l’espace au possible grâce à la hauteur sous plafond.

Aperçu du plan à l'échelle 1/20.
PLAN ETAT DES LIEUX

SALON
Aperçu, mise en situation en 3D du salon.
" Minimal design,
Maximum impact "
COUPE AMENAGEMENT
Aperçu du plan à l'échelle 1/20.


COUPE AMENAGEMENT
Aperçu du plan à l'échelle 1/20.

SALON
Aperçu, mise en situation en 3D du salon.

SALON
Aperçu, mise en situation en 3D du salon.
" Minimal design,
Maximum impact "
CUISINE
Aperçu, mise en situation en 3D de la cuisine.


CUISINE
Aperçu, mise en situation en 3D de la cuisine.
FANNY BOIVIN
ARCHITECTE D'INTERIEUR
7 rue Paul Verlaine
69100 Villeurbanne
06.34.43.15.08